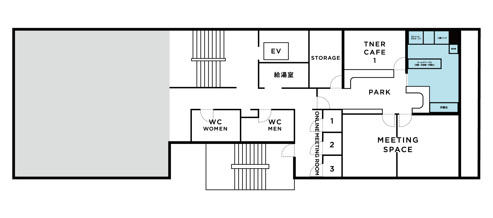
TNER2階 キッチンテナント
面積:14㎡
住所:宮城県仙台市青葉区二日町17-22
価格:77,000円(税込)/月
#キッチン
#店舗
#TNER
#仙台
仙台市二日町にあるシェア型複合施設TNER(トナー)では、キッチンテナントの入居者を募集いたします。
テイクアウト・デリバリー専門店におすすめの区画となります。
二日町はマンションなどの住居が多い一方で、オフィスビルも立ち並ぶエリア。
仙台市中心部へのアクセスも良く、デリバリー拠点として使いやすい立地です。
今回募集する区画は飲食店営業許可の基準を満たしており、申請に必要な追加の内装工事が不要です。そのため初期投資を抑えて飲食ビジネスをスタートできます。
飲食スペースのないコンパクトな区画のため、これから飲食事業にチャレンジしたい方にも嬉しい価格帯です。
まずはデリバリー専門店として始めてみるのはいかがでしょうか?
キッチンはシェア型複合施設内の2階フロアにあります。
同じ建物内にはシェアオフィスやアパートメントがあり、施設内の入居者によるテイクアウト需要も期待できます。
内覧は随時ご予約を承っておりますので、どうぞお気軽にお問い合わせください。
【専有部設備】
・ガスコンロ(3口)
・ガスオーブン
・コールドテーブル(冷蔵庫、冷凍庫)
・製氷機
・換気設備
・給湯器
・エアコン
・作業台
・二層シンク
・収納棚
・電源(5箇所)
【共有設備】
・男女別トイレ
・インターネット(無線LAN/無料)
・エレベーター
・複合機(共有部/有料)
・3階シェアオフィス内共用部使用(最大3名まで)
・ロッカー使用(最大3個まで)
・施設内レンタルスペースの利用(会員価格)
※写真クリックで拡大
※写真クリックで拡大

-
- 所在地
- 宮城県仙台市青葉区二日町17-22
-
- 交通
- 仙台市営地下鉄南北線「北四番丁」駅 徒歩約3分
-
- 賃料
- 77,000円(税込)
-
- 管理費
- 3,300円(税込)
-
- 敷金
- 賃料1ヶ月
-
- 礼金
- 賃料1ヶ月
-
- 保証会社
- 賃貸保証:加入要
(日本セーフティー:初回保証料賃料合計100%)
-
- 構造・規模
- SRC造 地上10階/2階部分
-
- 使用部分面積
- 14㎡
-
- 築年月
- 1982年3月
-
- 契約形態
- 普通賃貸借契約
-
- 契約期間
- 2年(自動更新)
-
- 水道光熱費
- 別途実費にてご請求
-
- 利用可能時間
- 24時間
-
- 営業可能時間
- 7:00∼22:00
-
- 現況
- 申込有
-
- 引渡可能時期
- 即可
-
- 取引形態
- 貸主
-
- 駐車場
- 空有(22,000円/月額)
※最新の情報はお問い合わせください。
-
- 駐輪場
- 有(無料)
-
- 募集業態
- デリバリーやテイクアウトを主軸とした営業形態の募集になります。提供メニューについては柔軟にご相談に応じます。
-
- 備考①
- 建物3階にシェアオフィス「TNER」があり、共用部およびロッカーの利用が可能です(契約者含め3名まで)
-
- 備考②
- 借主の負担にて営業許可を申請する必要がございます。
-
- 備考③
- 営業中は必ず食品衛生責任者が常駐し、衛生管理に努めてください。
-
- 備考④
- 酒類の販売は禁止となります。
-
- 備考⑤
- 現況優先となります。現地のご確認をお願いいたします。